Real- und Mittelschule Arnstorf - Sanierung/Erweiterung
GENERALSANIERUNG UND ERWEITERUNG:
Die bestehende Hauptschule in Arnstorf, Baujahr 1973, wurde zu einer gemeinsamen Real- und Mittelschule erweitert, der Bestand generalsaniert.
Die Schule wurde bei laufendem Schulbetrieb um ein Geschoss, das in Holzrahmenbauweise in Abstimmung auf das bestehende Tragsystem ausgeführt wurde, erweitert. Mit dem Einbau neuer Holz-Alu-Fenster als Pfosten-Riegel-Elemente und dem Austausch der Asbest-Zementplatten gegen ein verputztes Wärmedämmverbundsystem wurde die Fassade sowohl optisch als auch energetisch aufgewertet. Anstelle des alten Flachdaches wurde ein geneigtes „Schmetterlingsdach“ aus Metall mit innenliegender Entwässerung ausgeführt.
Mit Hilfe eines durchdachten Farbkonzepts, das jeder Ebene eine Grundfarbe zuordnet, wurde die Orientierung im Gebäude erleichtert. Auch in den Klassenzimmern wurde mit den jeweils passenden farbigen Möbeln dieses Konzept umgesetzt.
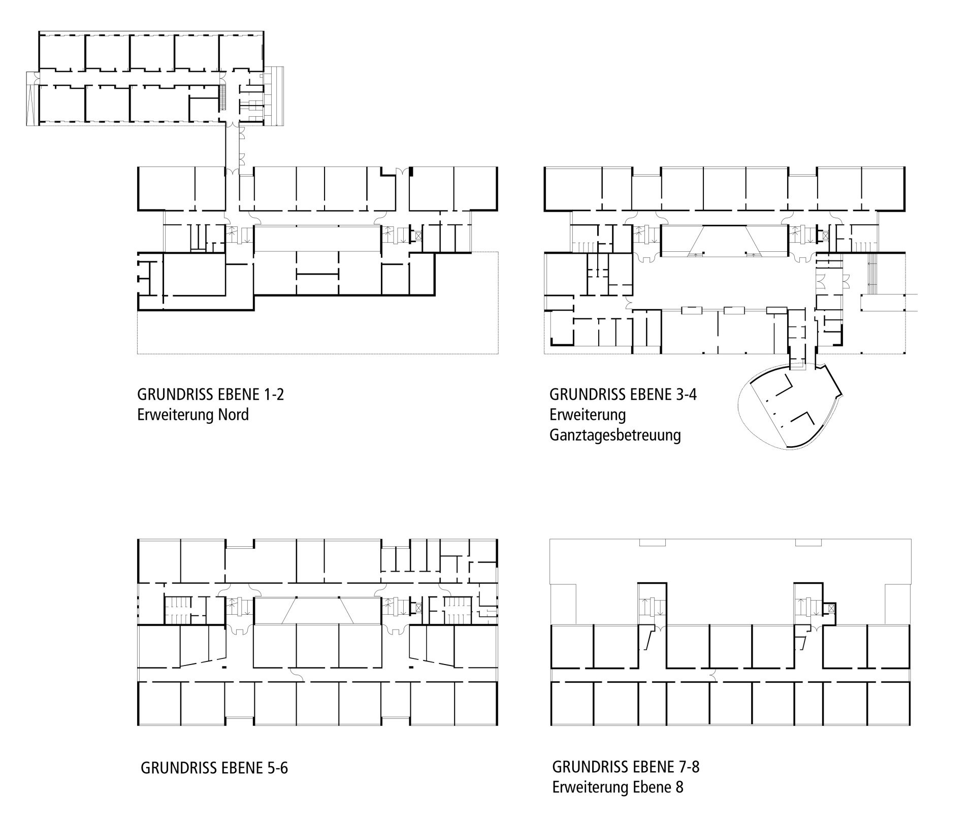
ERWEITERUNG NORD:
Zur Erweiterung der Realschule wurden neue Klassenzimmer an Stelle der früheren Sporthalle nordwestlich des Schulgebäudes in Holzrahmenbauweise geschaffen. Dafür wurde der ehemalige Geräteraumtrakt erhalten und als Fundament für den neuen Schultrakt genutzt.
Auf diese Weise konnte eine extrem kurze Bauzeit von nur sechs Monaten ermöglicht werden.
PAVILLON GANZTAGESBETREUUNG:
Die notwendigen Räume für die offene Ganztagesbetreuung wurde mit einem Holzpavillon erweitert. Die freie Form betont baulich und räumlich den Übergang zwischen Schule und Freizeit. Die Ausführung als Holzbau ermöglichte eine kostengünstige, schnelle und termingerechte Umsetzung. Die freie Baukörperform konnte mit handelsüblichen, geraden Massivholzquerschnitten umgesetzt werden. Nur die drei Hauptträger wurden aus gebogenem Brettschichtholz hergestellt. Dieses Haupttragsystem aus Bogenbindern liegt gelenkig auf eingespannten Stahlbetonstützen und kragt bis zu 6 m aus.
Im neu gebauten Holzpavillon wurden die Aufenthaltsräume für die Schüler untergebracht. Die Sichtbeton- Wandscheiben gliedern den Raum in die vier Bereiche Essen, Arbeit, Ruhe und Action. Großformatige Schiebeelemente erlauben eine flexible Nutzung des Raumes. Die Verbindung zum Bestandsgebäude bildet der rote "Tunnel". Entlang des Tunnels sind die Nebenräume untergebracht. Im Außenbereich nimmt ein Holzdeck die Dachform wieder auf. In Verbindung mit den Sitzstufen wurde so eine vielseitig nutzbare Outdoor-Bühne geschaffen.
Architektouren 2010
Bauherr
Ort
BRI
HNF
LPH
Bilder
Markt Arnstorf
Eggenfeldener Str. 43, 94424 Arnstorf
43.165 m³
6.066 m²
1-9
Stefan Schilling
